












De vanzare teren construibil situat intr-o zona centrala aflata in proiectul urbanisc de extindere a centrului vechi dar aflat in afara zonei protejate, la 5 minute de metrou Piata Muncii pe strada Orzari - zona DECEBAL, CALARASI, AGRICULTORI, Tepes Voda.
Terenul dispune de 2 propuneri arhitecturale conform PUG Bucuresti prin care se doreste promovarea conceptului de CLADIRE VERDE.
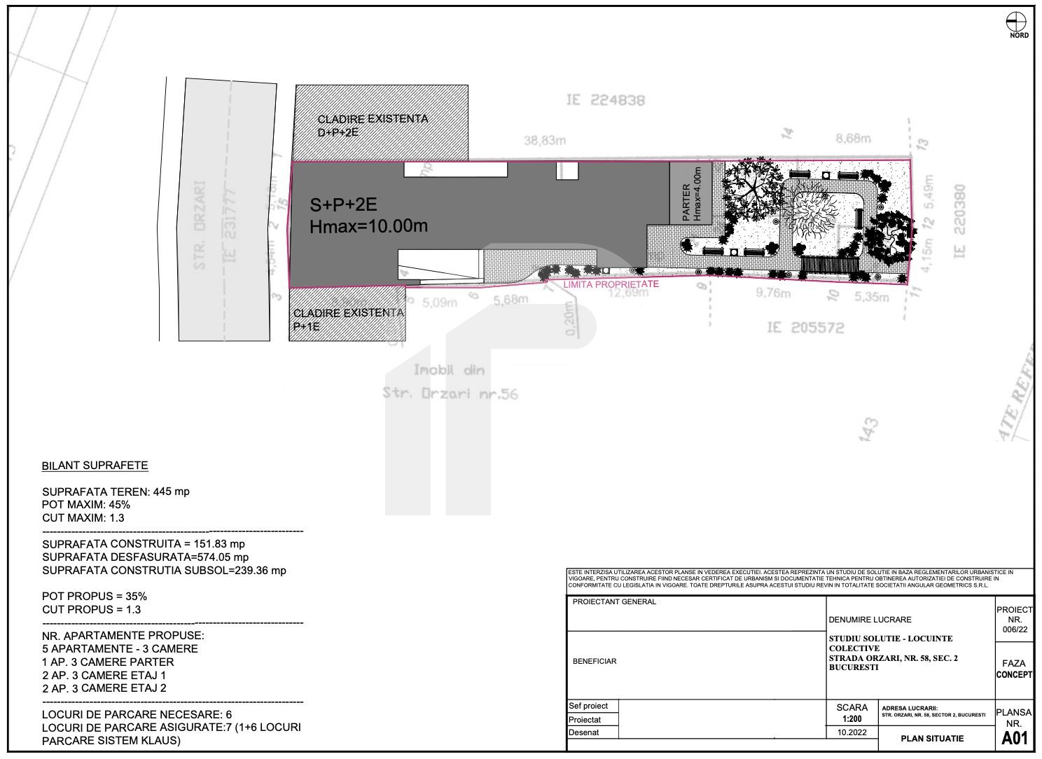
Astfel, primul proiect de tip boutique „GREEN BUILDING" D+P+2E pune în practică conceptul de locuire urbană verticală și cuprinde 5 apartamente de 3 camere, astfel:
- suprafata construita la sol = 151.83 mp
- suprafata utila desfasurata=574.05 mp
- suprafata teren: 445 mp
- POT maxim: 45%, POT propus = 35%
- CUT maxim: 1.3, CUT propus = 1.3
- suprafata construtia subsol = 239.36 mp
- locuri de parcare necesare: 6
- locuri de parcare asigurate: 7 (1+6 locuri parcare sistem klaus)
A doua propunere - LOCUINTA UNIFAMILIALA P+2E:
- suprafata construita la sol= 141.39 mp
- suprafata utila desfasurata=406.42 mp
- Suprafata teren: 445 mp
- POT propus = 31% CUT propus = 0.91
- locuri de parcare asigurate: 4 (2 locuri parcare sistem klaus)
Fiecare proiect se poate completa cu Mansarda.
Pe teren se afla 2 case a cate 2 camere fiecare, un atelier si un garaj, toate demolabile.
Latura stanga a terenului este la calcan cu un bloc D+P+2.
Terenul are o deschidere la strada de 9 ml cu latura de 39 ml.
Cafenelele si zonele pietonale incercuiesc si infrumuseteaza zona atat pentru doritorii de plimbari cat si pentru doritorii de savurat cafele si ceiuri la terase dichisite atat pe bulevardul Decebal cat si rasfirate prin cartier. Parcarea subterana ce contureaza noua infatisare a zonei - se afla doar la 5 minute de mers pe jos de locatie.
In plus, la 10-15 minute de mers se afla parcul National (fostul 23 August), Complexul Sportiv Naţional Lia Manoliu, Arena Nationala, iar la 10 minute, pe Agricultori - Liceul international IBSB cu predare in lb engleza, SC Gen 85 Vasile Bunescu, la fel si Colegiul National Mihai Viteazul, Iulia Hasdeu sau Colegiul National Emil Racovita (liceul sportiv).
Pentru mai multe detalii nu ezitati sa ma contactati!